Steel DIN Rails
The Steel DIN Rails are available in sizes to suit all types of Terminal Stations, MCBs and other rail mounted devices. Our Rails are RoHS Compliant.
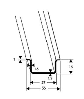
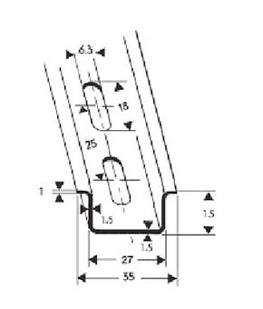
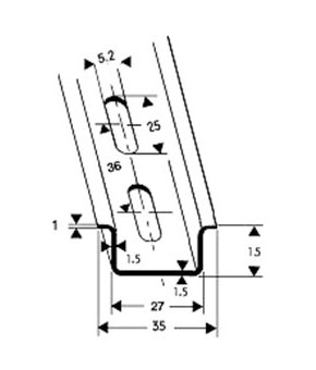
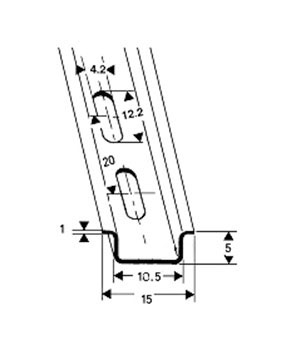
Sizes
- 35 x 7.5 mm
- 35 x 15 mm
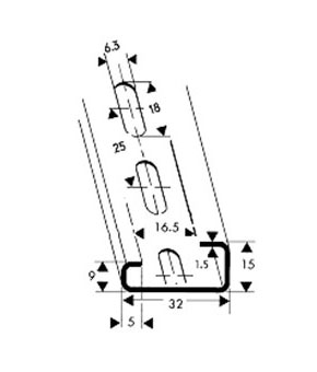
- 32 x 15 mm (G Section)
- 15 x 5 mm
The Standard lengths available are 1 meter or 2 meter. Please mention the length while ordering.

ADR3575U

ADR3575S1863

ADR3575S2552

ADR3515U

ADR3515S1863

ADR3515S2552

ADR155S12242

ADR3215U

ADR3215S1863

Note : All the Steel Rails are Zinc Electroplated (White or Yellow). Stainless Steel Rails are with natural finish.
Download PDFAluminum DIN Rails
We offer Aluminum Mounting Channels in two types as follows:
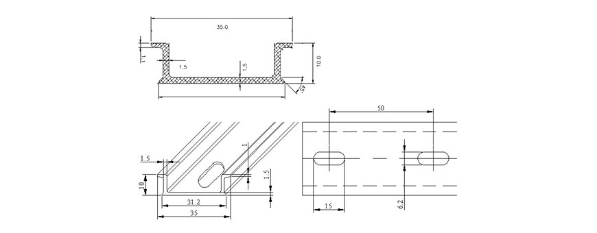
- Standard Din Type (35mmx10mm)
- High Rise Channel
1 : Standard Din Type (35mmx10mm) AAL3575

Features:
- Slotted at regular intervals for easy installation
- Available in 1 Meter and 2 Meter lengths
- RoHS compliant
2 : High Rise Channel AHRAL35

Features:
- Slotted at regular intervals for easy installation and cable entry
- Available in 1 Meter and 2 Meter lengths
- RoHS Compliant